Anglesea
Pinnacle of Luxury: Anglesea.
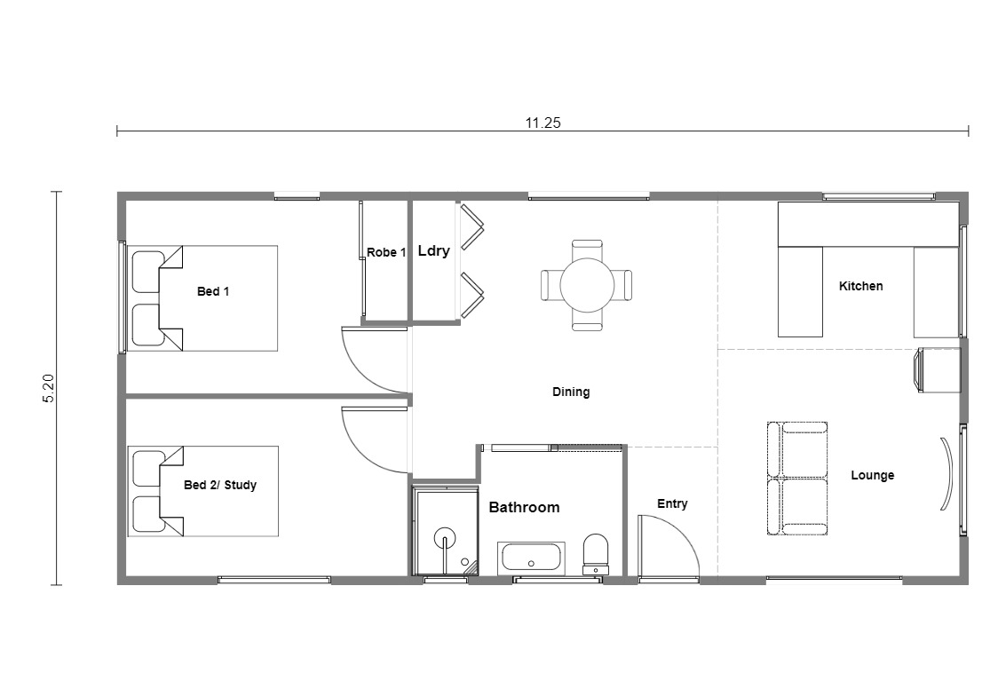
Step into luxury with our spacious Master Bedroom and inviting Guest room, designed to provide the utmost relaxation and privacy. The modern kitchen, complete with stone benchtops, sets the stage for culinary excellence, while the European style Laundry seamlessly integrates into the full-height tiled Bathroom, elevating everyday living to a new standard of refinement.
Available with 2 distinct roof lines including feature raked ceilings.
Granny Flat
LENGTH WIDTH
11.25m 5.20m
58.5
2
1
Can be built on almost any block of land (subject to a site check).
Images shown are fully customised versions and do not necessarily reflect the Base Models
KEY FEATURES - Essentials Range
-
Engineered Flooring to Living Areas
-
Feature height tiling to Bathrooms
-
Air Conditioning to Living areas
-
Matt black or Chrome tapware
-
Modern designed kitchen
-
High quality Kitchen appliances
-
Electric Hot Water System
-
7 star energy efficiency design
-
Architectural range of external claddings to choose from
-
Double Glazed windows
-
Open plan living areas
-
Environmentally considerate design with minimal impact on your land.
House
90
2
1
Can be built on almost any block of land (subject to a site check).
Images shown are fully customised versions and do not necessarily reflect the Base Models
LENGTH WIDTH
12.80m 9.50m
KEY FEATURES - Essentials Range
-
3 x large bedrooms
-
Separate Bathroom
-
Modern designed kitchen
-
Dedicated Laundry
-
Engineered Flooring to the Living Area
-
Air Conditioning to Living areas
-
High quality Kitchen appliances
-
Electric Hot Water System
-
7 star energy efficiency design
-
Architectural range of external claddings to choose from
-
Double Glazed windows
-
Open plan living areas
-
Environmentally considerate design with minimal impact on your land. Can be built on almost any block of land- subject to a site check
-
Deck areas optional
We've handled most of the heavy lifting for you with our Themes, which provide all the materials for your fitout. While you can make some adjustments, the Signature Theme lets you decorate according to your personal taste.
















