Blairgowrie
Indulge in Prestige: "Blairgowrie" Opulent Hideaway
Our Blairgowrie Granny Flat offers the experience of open-plan living, where raked ceilings create an airy ambiance, perfect for entertaining or simply unwinding in style.
Choose from an architectural range of external claddings and internal styles to personalize your design, ensuring it seamlessly integrates with its natural surroundings.
Granny Flat
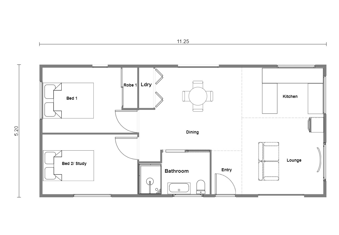
FLOOR PLAN
59.6
2
1
Can be built on almost any block of land (subject to a site check).
Images shown are fully customised versions and do not necessarily reflect the Base Models
LENGTH
9.5m
WIDTH
6.20m
KEY FEATURES - Essentials Range
-
2 Spacious and bright bedrooms
-
Modern designed kitchen
-
European style Laundry
-
Engineered Flooring in Living Areas
-
Elegant tiling to Bathrooms
-
Air Conditioning in Living area
-
High quality Kitchen appliances
-
Double Glazed windows
-
7 star energy efficiency design
-
Electric Hot Water System
-
Double Glazed windows
-
Architectural range of external claddings to choose from
-
Open plan living areas
-
Environmentally considerate design with minimal impact on your land.
FLOOR PLAN
House
KEY FEATURES
-
2 Spacious and bright bedrooms
-
Modern designed kitchen with stone benchtops as standard
-
European style Laundry
-
Engineered Flooring as standard in Living Areas
-
Feature height tiling to Bathrooms
-
Air Conditioning in Living areas as standard
-
High quality Kitchen appliances included
-
Double Glazed windows as standard
-
7 star energy efficiency design as standard
-
Electric Hot Water System included
-
Double Glazed windows as standard
-
Architectural range of external claddings to choose from
-
Open plan living areas with raked ceilings
-
Environmentally considerate design with minimal impact on your land.
128
3
1 + MBR Ensuite
Images shown are fully customised versions and do not necessarily reflect the Base Models.
House Floor plans are fully customisable to suit your needs.
Can be built on almost any block of land (subject to a site check).
LENGTH 14.5m WIDTH 10.34m
KEY FEATURES
-
1 spacious Master Bedroom with Built In Robe and Ensuite
-
2 x large bedrooms with Built in Robes
-
Separate Bathroom
-
Modern designed kitchen with stone benchtops as standard
-
Dedicated Laundry
-
Engineered Flooring to the Living Area
-
Air Conditioning to Living areas
-
High quality Kitchen appliances
-
Electric Hot Water System
-
7 star energy efficiency design
-
Architectural range of external claddings to choose from
-
Double Glazed windows
-
Open plan living areas
-
Environmentally considerate design with minimal impact on your land. Can be built on almost any block of land- subject to a site check
-
Deck areas optional
We've handled most of the heavy lifting for you with our Themes, which provide all the materials for your fitout. While you can make some adjustments, the Signature Theme lets you decorate according to your personal taste.


















