Torquay
Unveil Elegance: Iconic Torquay.
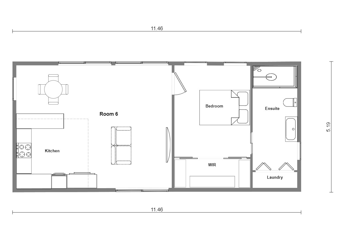
Upon entering, you're greeted by the spacious and luminous Living area featuring Kitchen and Dining spaces. Leading from these is the Master Bedroom bedroom, offering a serene sanctuary for relaxation and rejuvenation. Adjacent is a generously sized walk-in robe, providing ample space for your wardrobe essentials and beyond, with a huge Ensuite leading from the bedroom.
Find out more about the Torquay designs.
SPECIFICATIONS
59.5
1
1
Can be built on almost any block of land (subject to a site check).
Images shown are fully customised versions and do not necessarily reflect the Base Models.
LENGTH
11.40m
WIDTH
5.20m
KEY FEATURES - Essentials Range
-
Master bedrooms with huge wardrobe space
-
Feature height tiling to Ensuite
-
Engineered Flooring to Living Areas
-
Air Conditioning to Living areas
-
Matt black or Chrome tapware
-
Modern designed kitchen
-
High quality Kitchen appliances
-
Electric Hot Water System
-
7 Star energy efficiency design
-
Architectural range of external claddings to choose from
-
Double Glazed windows
-
Open plan living areas
-
Environmentally considerate design with minimal impact on your land.
KEY FEATURES
-
Master bedrooms with huge wardrobe space
-
Full height tiling to Ensuite
-
Engineered Flooring as standard to Living Areas
-
Air Conditioning to Living areas as standard
-
Matt black tapware as standard throughout
-
Modern designed kitchen with stone benchtops as standard
-
High quality Kitchen appliances included
-
Electric Hot Water System included
-
6 star energy efficiency design as standard
-
Architectural range of external claddings to choose from
-
Double Glazed windows as standard
-
Open plan living areas with raked ceilings
-
Environmentally considerate design with minimal impact on your land.
We've handled most of the heavy lifting for you with our Themes, which provide all the materials for your fitout. While you can make some adjustments, the Signature Theme lets you decorate according to your personal taste.












